吸引我写这个案例的,就是儿童房的设计。
以往的案例里,儿童房主要给一个孩子住,坦白说只要空间足够,预留出一个次卧,怎么设计都足够。
难的是,今天这位屋主家里有两个孩子,姐姐和弟弟,一男一女两人都到了分开住的年纪,同时还要考虑隐私、学习、玩耍的区域。

图 屋主提供 / 肖像已获得屋主授权
按照屋主的诉求,还要有中西厨、大客厅、衣帽间,这对于要住一家四口,且只有72㎡的房子来说,改造难度不小。
本期的看点里还有大家一直关心的“微水泥好不好用”。
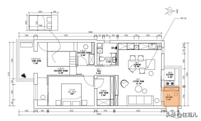
改造前

原始户型很方正,是规规矩矩的两室一厅一厨一卫,但玄关面积很大很长。
改造后


右滑看带尺寸的户型图
结合屋主诉求改造的重点如下:
1.结构上,将过长的玄关一分为二,一半用作门厅,一半用作中厨;
2.改原有主卧门的朝向,向客厅借1.5㎡做衣帽间;
3.改次卧门、卫生间门朝向,规划走廊作为家里公私区域的过度地带(接待区与住宿区);
4.重新规划后,主卧、儿童房处于半开放状态,大大增加了家庭互动区,同时全屋多出40㎡的收纳空间。
从阳台位置看儿童房、主卧的剖面图
▼

看儿童房的可下拉最后一个标题
老规矩,咱们按着进门的顺序,一个个来说~
家芝Studio
户型:两室一厅一厨一卫
项目位置:北京朝阳
使用面积:88㎡(实际72㎡)
项目花费:50万(不含独立家电部分)
01
玄关

2.4㎡的玄关本就不算小了,但他家正对客餐厅的方向还有个朝北的窗户,虽然光直接照不到,但采光和通风还是很占优势。
玄关和客餐厅连接在一起,通铺人字拼地板更显大;常见的吊柜+悬浮式地柜组合做收纳,不藏灰还方便。

顶上放不常用的东西,中间开放格放钥匙,提前预留2个插座作为临时给客人手机充电,或者家里插座不够时的备用。
底部预留25cm刚好塞下扫地机器,充电位置也在这里。

一墙之隔的就是中厨房,也和客餐厅连在一起。
02
功能大集合的客餐厅

玄关进来就是近22㎡的客餐厅,也是家里功能区的大集合。
中西厨、家政间、还有部分收纳空间,包括家庭聚会、接待三五好友统统都在这个开放的空间内。
屋主一家的家庭聚会
从岛台+餐桌望向沙发方向
▼

跨过玄关,一眼进来的场景,就是靠墙的沙发和整墙的通顶收纳柜,角落有开放格作为展示区。

房子的原始层高是2.5m,新风和中央空调都尽量安装在卫生间、衣帽间内,客厅只占去了10cm,同时暗装内嵌无主灯,现在实际高度约2.4m。
内嵌的无主灯,每隔0.8m一个,加上餐桌上方需要特别打亮,多装了4个,14㎡一共装了12个,花费1500元。

与沙发对墙的区域是西厨区。以定制柜做组合,内嵌入容纳下冰箱、蒸烤箱、洗衣机、洗碗机等常用家电。
洗菜区也在这里~


为了弥补操作台不够的尴尬,设计师规划了一个方方正正的岛台,0.9m的长和宽,刚好和旁边2m长的桌子组合,容纳一家四口同时吃饭,备菜、传菜、放东西都很方便。
“岛台+餐桌”,是开放式厨房的常见做法,喜欢的朋友们可以借鉴,需要提醒的是,岛台并不便宜,人造石的4㎡下来得5000左右,岩板的更贵。


03
半独立的中厨房

大家都知道,在国内做全开放厨房,各地规定和燃气公司都是不一样的,北京也是。
设计师巧借了一半玄关的面积,将中厨的部分放在这里,虽小却五脏俱全。

从走廊望向客餐厅
三面环窗,配上油烟机,做饭压根不用担心采光和通风问题,下面的吊柜还能装下常用的小家电。
用推拉玻璃门与客餐厅分隔,也不影响大功能区的采光。

与玄关一墙之隔的墙也没浪费,刷上黑板漆成了两个孩子的涂鸦区,释放天性随便画,反正能擦!
以后孩子长大,这里也可以变成家里的留言墙。

姐姐画完、弟弟画的涂鸦墙

04
公共、隐私的分界线:走廊

3m长的走廊,是这个家连接公共空间、隐私空间的一个过度地带~
穿过走廊,再推开门的门就是主卧、儿童房和卫生间了。


客餐厅走廊望向儿童房方向(朝南)
走廊空间的所有墙、和客餐厅的定制柜门板一样,都通刷了微水泥,30㎡共花去了1w多大洋,平均每㎡约500元,和艺术漆、进口壁纸的价格差不多了。

卫生间的悬浮式暗装推拉门也刷了微水泥
Tips:之前总有小伙伴问微水泥这种材质。其实,微水泥也是水泥材质中的一种,无缝一体、耐用防水,哪里都能刷,但最大的问题就是贵且施工难。
尤其市面上这种材质好坏难辨,很容易踩坑,如果很喜欢且能接受它的价格,可以像屋主一样通刷。
有关于这种材质的更多细节我专门做了一篇,本月底可以看,想了解可以重点关注下~

05
必做干湿分离的 卫生间

穿过走廊的右手边,通过暗装的悬浮式推拉门就进入卫生间。
4.5㎡的卫生间位置和原来一样,设计后重新规划了干湿分离;干区安装了墙排式的壁挂马桶,充分利用上方空间安装壁挂洗衣机洗孩子的衣服。
另外,还预留了一个插座,给以后改成智能马桶做备用。

马桶对面是干区的洗手区,洗手区的上方靠近镜子位置安装了筒灯,照射范围大,几乎没有阴影区,方便实用。

淋浴区顶地通铺了0.6x1.2m的大瓷砖,暗装的墙排式的顶喷花洒,出水量大洗澡也更爽。

顶喷花洒的正下方做了0.2-0.3cm的坡度缓冲,长条形的地漏排水更快。
06
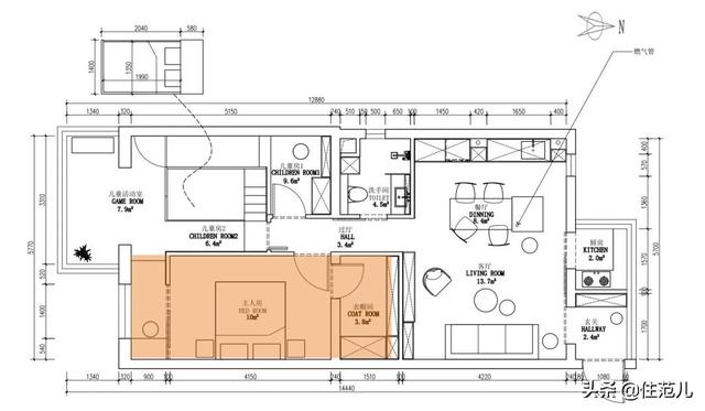
带衣帽间的大主卧

走廊的左手边推门进去,是主卧。
夫妻俩很看重与孩子的互动,主卧+儿童房这两个区域,除了必要的功能区,比如睡觉、学习等,其余的地方基本全可以玩。


主卧给夫妻俩住,除了实木床、床头柜,全屋没有没有一点儿多余的设计。



夫妻俩、包括俩孩子的衣物,全被收纳进隔壁的衣帽间,门就在上图涂鸦房屋的旁边。

床的另一边,有个靠窗户的推拉门,通过推拉门就等于进入了家庭互动区。


打开推拉门后,设计师在这里安置了一个吊柜+写字台,它可以是夫妻俩临时的办公区,也可以是弟弟的学习区。

打开推拉门后的学习区,从阳台望向主卧区域

阳台的剖面图,右侧标黄的是主卧+学习区,可直接进入儿童区。
07
上下分开、有超大容量的男女儿童房

看下面俯视图,儿童房有三个入口,两个在走廊,一个在主卧(与上面户型图位置对应)。
1号口进去的是姐姐的房间,下图中的粉色区域;2号口进去的是弟弟的房间,下图中的蓝色区域;3号口就是上面说的主卧连动区,可以分别到达两个孩子房间。

这个区域我们要说三个重点:
1.上下分铺的S型设计
2. 儿童房全屋地面榻榻米
3. 家庭互动区
上下分铺的S型设计
基于原有的两室,设计师在不动位置的情况下,将原本连接阳台的一间打通后用作儿童房,考虑到两孩子性别、年龄都到了分住的年纪。
设计师在常见的上下分铺基础上,拆分了一堵竖墙后侧面看呈“S型”,便将两孩子的居住空间巧妙分开。

图 红色部分为拆分墙体 /正面看
侧面看,或者阳台的视角,就是下面这样~

拆分后的儿童房有点像洄游动线,看似彼此独立,又通过玻璃门互相打通,在墙上淘个洞,有啥事朝洞一声喊,挺有趣的!


弟弟的卧室通过台阶上去,只能睡觉。
台阶距离屋顶还有1m的空间,成年人坐着上半身身高约🦄在0.8-0.9m,不出意外,这样的空间可以用到孩子长大。



侧面像宿舍一样,做了扶手,不用担心孩子掉下来。
转个弯,在阳台打开玻璃门,就进入了姐姐的房间。

从主卧看向推拉门

从女儿房内看向推拉门
姐姐的房间因为在下铺,视野受限,预留层高要高一些1.2m,房内的私密性也比弟弟房间更好一些。

在上下铺靠墙边,暗藏了条形灯照亮整个空间,不会太压抑,开关就在床头。

儿童房全屋地面榻榻米
其实从走廊一进儿童房,就需要上一个20cm高的台阶。
这个台阶也是儿童房下沉式榻榻米的基础,全屋通用做了7个,用来存储不常用的东西。
光这一项,存储面积就增加了15㎡,加上其他面积零零总总31㎡的收纳,全屋光收纳面积就46㎡,几乎约等于房子面积的一半,花费也很多,20w左右。
这点小可爱们量力而行,着实不便宜!

推开走廊门后,看到的儿童房
此外,为了充分利用墙面,男孩房与主卧连接的墙面做了烤漆洞洞板,悬挂东西很方面。
这样的设计,占地面积和上下铺差不多大小,但全家的娱乐区,尤其是孩子的玩耍区比原来大了3倍不止,有娃之家,尤其是两娃家庭,可以作为一种装修参考思路。
好了,这就是今天的设计师案例,有没有觉得开拓思路,喜欢的话就留下 赞 吧,下期见啦!
好了,这篇文章的内容发货联盟就和大家分享到这里,如果大家网络推广引流创业感兴趣,可以添加微信:80709525 备注:发货联盟引流学习; 我拉你进直播课程学习群,每周135晚上都是有实战干货的推广引流技术课程免费分享!